Aplicação Simplificada do Método ARICA na Análise de Prevenção e Combate a Incêndios em Centros Históricos: Estudo de Caso no Pátio de São Pedro, Recife.

 

Utilization Simplified of the ARICA Method to Identify the Fire Prevention and Mitigation in Historical Centers: Case Study in Pátio de São Pedro, Recife.

 

Pedro Tavares de Lima1
 orcid.org/0009-0003-3720-3282



Eliane Maria Gorga Lago2
 orcid.org/0000-0003-0987-3492

Felipe Mendes da Cruz3
 orcid.org/0000-0002-0163-465X

Victor de Sá e Moraes4
 orcid.org/0000-0001-8683-5719


 

 

1Escola Politécnica de Pernambuco, Universidade de Pernambuco, Recife, Brasil. E-mail: tellestavares@hortmail.com

 

2Núcleo de Higiene e Segurança do Trabalho, Escola Politécnica de Pernambuco, Universidade de Pernambuco, Recife, Brasil. E-mail: elianelsht@poli.br

 

3Núcleo de Higiene e Segurança do Trabalho, Escola Politécnica de Pernambuco, Universidade de Pernambuco, Recife, Brasil. E-mail: felipemendeslsht@poli.br

 

4Pós-graduação em Engenharia de Segurança do Trabalho, Escola Politécnica de Pernambuco e Departamento de Engenharia do Trabalho, Pernambuco, Brasil.

E-mail: vik.moraes@gmail.com

 

 

 

DOI: 10.25286/repa.v10i2.3165

 

Esta obra apresenta Licença Creative Commons Atribuição-Não Comercial 4.0 Internacional.

 

Como citar este artigo pela NBR 6023/2018: Pedro Frederico Telles Tavares de Lima; Eliane Maria Gorga Lago; Felipe Mendes da Cruz; Victor de Sá Alencar e Moraes. Aplicação Simplificada do Método ARICA na Análise de Prevenção e Combate a Incêndios em Centros Históricos: Estudo de Caso no Pátio de São Pedro, Recife. Revista de Engenharia e Pesquisa Aplicada, v.10, n. 2, p. 67-83, 2025

 

RESUMO

 

Os edifícios do patrimônio cultural estão sujeitos a desastres naturais (terremotos, enchentes), físicos (incêndio e desmoronamentos) e até ações dos humanos (atos de guerra e vandalismos), dentre eles o incêndio é o mais comum e podem ocorrer em qualquer construção. Este estudo tem como objetivo principal identificar, analisar e propor medidas de melhoria nos prédios antigos, além de alertar para a necessidade de mudanças ou aprimoramentos na legislação local, tornando-a mais específica para o combate e a prevenção de incêndios em Conjuntos Históricos. O estudo aplica a metodologia ARICA simplificada no Pátio de São Pedro, Recife, uma área histórica e cultural com origens no século XVIII. Neste estudo são analisadas a legislação estadual e a aplicação do método em seis imóveis de diferentes usos do Conjunto Antigo. Os resultados revelam o índice de risco e o de vulnerabilidade dos edifícios em relação ao incêndio. Constata-se que melhorias nos imóveis, tais como nas instalações físicas, no estado de conservação, maior segurança nas rotas de fuga, equipamentos de segurança no combate ao incêndio, além de melhorias coletivas para o Conjunto Histórico como criação de equipes de segurança com exercícios de combate a incêndios e evacuação simulando uma possível situação real, visam melhorar os índices e assegurar a preservação do patrimônio e a proteção de vidas.

 

PALAVRAS-CHAVE: Segurança contra Incêndio, Patrimônio Histórico, ARICA.

 

ABSTRACT

Cultural heritage buildings are subject to natural disasters (earthquakes, floods), physical disasters (fire and landslides) and even human disasters (acts of war and vandalism), of which fire is the most common and can occur in any building. The main objective of this study is to identify, analyze and propose measures to improve old buildings, as well as to warn of the need to change or improve local legislation, making it more specific for fighting and preventing fires in Historic Buildings. The study applies the simplified ARICA methodology to the Pátio de São Pedro, Recife, a historic and cultural area with origins in the 18th century. This study analyzes state legislation and the application of the method to six buildings of different uses in the Old Complex. The results reveal the risk and vulnerability index of the buildings in relation to fire. It was found that improvements to the buildings, such as physical installations, state of conservation, greater safety in escape routes, fire-fighting safety equipment, as well as collective improvements to the Historical Complex such as the creation of safety teams with fire-fighting and evacuation exercises simulating a possible real situation, aim to improve the rates and ensure the preservation of heritage and the protection of lives.

 

KEY-WORDS: Fire Safety, Historical Heritage, ARICA.

 


 


1       INTRODUÇÃO

 

Os edifícios do patrimônio cultural estão sujeitos a desastres naturais (terremotos, enchentes), físicos (incêndio e desmoronamentos) e até ações dos humanos (atos de guerra e vandalismos), dentre eles o incêndio é o mais comum e pode ocorrer em qualquer construção, independente de condições econômicas, geográficas e políticas [1]. Como exemplos recentes têm os incêndios do Museu Nacional no Rio de Janeiro no ano de 2018 e o da Catedral de Notre-Dame em Paris no ano de 2019.

O termo combate a incêndio a princípio remete o conceito de salvaguarda e proteção das vidas humanas, porém há casos em que objetos, edifícios e sítios arqueológicos também têm um valor inestimável, incalculável e sentimental para uma cidade, país ou até para a própria humanidade [2]. Contudo, as normas de regulamentação de combate e prevenção de incêndio, geralmente, estão direcionadas a projetos de edificações novas, sendo muitas vezes inadequadas aos prédios do patrimônio histórico e cultural da cidade, devido à especificidade de suas características construtivas e ou de sua implantação [3,4].

A proteção de prédios antigos é eficiente no combate a incêndios, pois permite que esses locais atinjam níveis mínimos de segurança, protegendo o usuário e o patrimônio edificado [4].

Um conceito fundamental é o chamado triângulo do fogo, que descreve os três elementos essenciais para que um incêndio ocorra: calor, combustível e oxigênio. Esses três componentes interagem entre si para permitir o início e a propagação do fogo. A remoção ou controle de qualquer um desses elementos pode interromper o ciclo de incêndio, prevenindo ou extinguindo o fogo [5].

 O calor é a energia necessária para iniciar e sustentar a reação de combustão, que pode vir de fontes como sistemas de aquecimento inadequados, fiações elétricas antigas ou até faíscas provenientes de atividades humanas, como soldagens ou fumaça de cigarros [5].

 O combustível refere-se a qualquer material que possa ser queimado, como madeira, papel, tecidos e outros materiais inflamáveis. Nos edifícios históricos, o combustível é uma preocupação significativa, pois muitos desses prédios possuem estruturas de madeira antigas, revestimentos e materiais altamente combustíveis [5].

O oxigênio, geralmente disponível no ar, também é essencial para a combustão, e sua concentração no ambiente pode agravar o fogo em espaços mal ventilados. Portanto, a segurança contra incêndio em edificações históricas depende da gestão desses três fatores, de maneira a minimizar os riscos de incêndios e proteger tanto as vidas quanto o patrimônio [5].

Em relação à segurança dos edifícios históricos, é fundamental entender como esses três elementos podem ser controlados para evitar incêndios. Por exemplo, medidas de prevenção, como a utilização de materiais de construção resistentes ao fogo e a instalação de sistemas de detecção e combate a incêndios, podem ajudar a interromper o ciclo do triângulo do fogo. Além disso, a manutenção regular da infraestrutura elétrica e a instalação de sistemas adequados de ventilação podem minimizar o risco de calor excessivo ou oxigênio em excesso, reduzindo significativamente a probabilidade de incêndios.

No Brasil atualmente existe uma preocupação em incluir nos projetos de reparos de infraestrutura de edifícios históricos, o reforço de segurança contra incêndio, como visto no site do Ministério da Justiça e Cidadania, o qual destaca em Pernambuco e outros estados da Federação o repasse de verbas para reformas e adequações desses imóveis [6]. Porém, a verba destina-se em geral para imóveis pontuais de uma maior importância arquitetônica, esquecendo ou não dando o cuidado necessário em relação à extensão dessas medidas, como uma possível conservação dos prédios vizinhos de menor porte, os quais muitas vezes também fazem parte do Conjunto Urbano protegido.

Como exemplo, existe a reforma do Museu da Abolição em Recife, cujo um dos projetos previstos aplica ações mitigadoras de combate de incêndio, contudo os imóveis ao redor dessa edificação, apesar de fazerem parte de uma Zona Especial de Preservação do Patrimônio Histórico (ZEPH) delimitada pela própria Prefeitura da Cidade de Recife (PCR), não possuem a mesma atenção em relação à atualização dos projetos de combate e prevenção de incêndio [6,7].

Em Pernambuco, verificaram-se as normas do Código de Segurança Contra Incêndio e Pânico para o Estado de Pernambuco (COSCIP), o qual define as medidas mínimas a serem adotadas de acordo com o uso da edificação, a fim de emitir o Atestado de Vistoria do Corpo de Bombeiro (AVCB) para o funcionamento do mesmo [8].

Este trabalho aborda as questões críticas relacionadas ao risco de incêndio e à vulnerabilidade dos edifícios históricos, com o objetivo central de identificar, analisar e propor medidas de melhoria que possam ser aplicadas para aumentar a segurança contra incêndios, proporcionando uma maior eficiência nas intervenções do Corpo de Bombeiros e garantindo a preservação dos imóveis de valor cultural.

Assim, a pesquisa visa contribuir para a elaboração de estratégias que promovam um equilíbrio entre a proteção do patrimônio histórico e as exigências de segurança, sensibilizando as autoridades competentes sobre a necessidade urgente de integrar as normas de segurança aos requisitos específicos dos edifícios históricos.

 

2      REVISÃO BIBLIOGRÁFICA

 

2.1     PATRIMÔNIO HISTÓRICO

 

    Segundo o Instituto do Patrimônio Histórico e Artístico Nacional (IPHAN), os edifícios como Igrejas, museus, prédios públicos e os residenciais que tenham uma importância para a sociedade local, estadual, federal ou até mesmo para a humanidade nos termos da cultura, história, período, forma construtiva ou de representatividade de um manifesto artístico são considerados Patrimônio Histórico Cultural [9].

2.2     CONJUNTO ARQUITETÔNICO HISTÓRICO

 

A Organização das Nações Unidas para Educação, Ciência e Cultura (UNESCO) considera o Conjunto Arquitetônico Histórico como um agrupamento de construções ou de espaços, que constituam uma ocupação humana e que possuam um valor arquitetônico, artístico, estético ou sociocultural. E suas características peculiares devem ser mantidas em sua integridade [10].

Com isso, o IPHAN identifica e protege as cidades e os núcleos históricos nacionais, os quais representam as referências urbanas, onde é possível caracterizar os processos de transformação do país, por meio da preservação de expressões próprias de cada período histórico. São lugares importantes, pois conservam em seus edifícios, ruas e praças a base do Patrimônio Cultural Brasileiro, sendo sua preservação de responsabilidade da União, dos estados e municípios, e de toda a sociedade civil [9].

Em nível municipal existem leis de proteção que demarcam e identificam as ZEPH, as quais são áreas formadas por sítios, ruínas e conjuntos antigos de relevante expressão arquitetônica, histórica, cultural e paisagística da cidade. Essas Zonas são protegidas e fiscalizadas pela Diretoria de Preservação do Patrimônio Cultural (DPPC) [11].

 

2.3     CONJUNTO ARQUITETÔNICO HISTÓRICO EM RECIFE

 

No Brasil colônia o início do desenvolvimento da rede urbana foi consequência das estruturações relacionadas à ocupação e ao desenvolvimento do país. Foram construídas vilas e cidades implantadas no litoral, pois tinham a função portuária, servindo para o escoamento dos produtos coloniais e para a entrada dos artigos provenientes de Portugal. A cidade de Recife surge nesse cenário, por isso, existe um patrimônio significativo de importância no âmbito regional e nacional [9].

As conFigurações urbanas do século XVII até o final do XIX, de influência portuguesa em Recife, têm as seguintes características: Prédios religiosos determinando o espaço na função e na forma, devido a sua relevância, traçados de ruas irregulares, tipologia de construções de edificações tipo sobrados e de residências térreas, onde os prédios ocupam os limites frontais e laterais dos terrenos e são conjugados [12,13].

 

2.4     MÉTODOS DE ANÁLISES DE RISCO

 

A pesquisa buscou na bibliografia internacional e na nacional, métodos e instruções que orientassem como a conservação do Conjunto Urbano Histórico está sendo realizada. Verifica-se então, as medidas e preocupações analisadas que prolonguem o tempo de vida dos edifícios, e quais são as melhores soluções para a salvaguarda das vidas dos usuários desses lugares, deixando as antigas construções com suas condições de segurança contra incêndio equiparadas as atuais.

Na literatura internacional, existem vários métodos de análise de riscos de incêndio. Entre os mais usados, estão o Método Gretener, o Método de Avaliação de Risco de Incêndio (FRAME - Fire Risk Assessment Method), o Método de Índice de Risco de Incêndio (FRIM - Fire Risk Index Method) e a Análise de Risco de Incêndio em Centros Antigos (ARICA).

O método Gretener, publicado em 1965, foi criado pelo engenheiro suíço Max Gretener, e no princípio serviu para atender uma demanda das seguradoras, já que o mesmo avaliava o risco de incêndio de edifícios industriais. Seu estudo e aplicação foram desenvolvidos para atender essa demanda específica [12,13].

Fire Risk Assessment Method (FRAME) foi desenvolvido como uma evolução do Gretener, pois passou a considerar mais fatores que influenciam na análise de risco e com a preocupação maior em salvaguardar a vida humana. O método analisa as causas do perigo e as medidas de proteção contra incêndio existente no prédio [12].

Fire Risk Index Method (FRIM) foi desenvolvido na Suécia e é utilizado nos países nórdicos da Europa, sendo usado para avaliação de risco em edifícios geralmente de uso residencial construídos de madeira, de fácil aplicação, este método tem como uma das suas premissas fornecer ao prédio soluções de obter condições de segurança no combate e prevenção de incêndio. Contudo, a comparação de seu uso não consegue ser feita em diferentes tipos de edificações [12].

O método de Análise de Risco de Incêndio em Centros Antigos (ARICA) tem em sua premissa que o edifício situado em Conjuntos Históricos não pode ter o grau de risco superior ao de um edifício construído recentemente [12]. Isso se fundamenta a partir do momento que os usuários desses Centros não podem estar sujeitos a riscos superiores, além disso, os prédios antigos possuem um valor cultural agregado que deve ser preservado [13,14].

Esse método foi composto e atualmente foi atualizado usando como base o Regime Jurídico de Portugal em relação à Segurança Contra Incêndios em Edifícios. A referência principal é o Decreto-Lei nº 220/2008 aprovado em 12 de novembro, também é considerado o Regulamento Técnico de Segurança Contra Incêndios, aprovado em 29 de novembro pela Portaria nº 1532/2008 [13,15].

Em 2010 foi desenvolvida a Metodologia ARICA Simplificada, cuja finalidade principal foi a de facilitar a obtenção dos resultados, como os índices de risco e de vulnerabilidade ao incêndio. De uma forma menos detalhada esse método contempla a análise das características dos imóveis escolhidos dos Centros Antigos a serem analisados. É uma primeira triagem dos casos críticos, a pesquisa serve de base para a aplicação de outras metodologias [15].

 

2.5     LEGISLAÇÃO BRASIL

 

A NBR 14432 trata da classificação dos materiais e elementos construtivos de acordo com sua resistência ao fogo, considerando o tempo mínimo de desempenho necessário para garantir a integridade da edificação durante um incêndio. Além disso, a norma estabelece requisitos específicos para a resistência ao fogo de elementos construtivos, que variam conforme o tipo e a finalidade da edificação, como residenciais, comerciais, industriais, entre outros [19].

A utilização dos métodos internacionais reconhecidos e testados pela sociedade científica é admitida, porém deve-se considerar e adequar a sua utilização de acordo com a realidade brasileira [19].

Esses requisitos visam garantir a segurança estrutural das construções em situações de incêndio, protegendo as pessoas e os bens materiais, além de garantir tempo suficiente para a evacuação.

 

2.6     LEGISLAÇÃO PERNAMBUCO

 

Os Estados são autônomos para criar suas próprias regulamentações de incêndio, com isso, o Corpo de Bombeiro Militar de Pernambuco (CBMPE) é o responsável por estabelecer as condições mínimas de segurança em edificações no combate e prevenção do incêndio, cabendo à instituição planejar, analisar, avaliar, vistoriar, aprovar e fiscalizar todas as medidas relacionadas ao assunto [8].

Em Pernambuco os critérios relacionados aos sistemas de segurança contra incêndio e pânico para edificações é decretado em 22 de dezembro de 1994, quando foi instituída a Lei 11.186. No dia 13 de março de 1997, por meio do Decreto nº. 19.644, foi aprovada a Lei 11.186, denominada Código de Segurança Contra Incêndio e Pânico para o Estado de Pernambuco- COSCIP.

A lei Nº 13.425, de março de 2017 estabelece diretrizes gerais e ações complementares na prevenção e no combate ao incêndio. Nela os Estado e Municípios devem considerar as peculiaridades regionais e locais podendo determinar medidas diferenciadas de acordo com o tipo ou importância do estabelecimento [17].

 

 

 

 

Contudo, as normas pernambucanas atuam de forma muito ampla, a abordagem principal é voltada para as novas construções e o foco sempre voltado para o tipo de ocupação, área construída e altura da edificação [18]. De forma geral, as necessidades específicas dos Conjuntos de prédios históricos não são consideradas pelas normas [1,4,18].

   Um exemplo da falta de preocupação coletiva é que devido à implantação e gabarito dos imóveis serem similares há uma facilidade na propagação do fogo devido às mesmas alturas dos telhados, os quais geralmente são de estruturas de madeira, material bem combustível [19].

 

3     METODOLOGIA

 

A área do estudo de caso foi selecionada entre as Zonas de Preservação de Recife, dentre elas a escolhida foi o Pátio de São Pedro no Bairro de Santo Antônio, um local de importância cultural, religiosa e social com forte relação com a cidade. Além disso, a sua concepção urbanística que é de influência portuguesa do século XVIII até o final do século XIX, se interliga ao método adotado de avaliação de risco ARICA, pois ele foi elaborado inicialmente para atender as necessidades dos Centros Antigos de Portugal.

O referido conjunto arquitetônico tem como edifício principal a Concatedral de São Pedro dos Clérigos de 1728, faz parte ainda o terreno de frente a Igreja que possui um calçamento de pedras irregulares e um gradil de ferro delimitando o átrio, além do casario de 29 casas coloniais. A estrutura dos prédios é de alvenaria autoportante e percorre o perímetro externo do terreno ocupando-o por completo. Na sua maioria trata-se de construções de um ou dois pavimentos como mostra a Figura 1 [20].

 

Figura 1: Foto do Pátio de São Pedro.

foto tarja.jpg

Fonte: Os Autores.

 

Com o passar dos anos o Pátio de São Pedro vem se tornando um ponto importante na vida cultural de Recife, as casas construídas inicialmente para moradia atualmente têm os usos de bares, lojas, estabelecimentos de comércio e serviços e são frequentadas por artistas e intelectuais. O local abriga eventos tradicionais da cidade, como Carnaval e São João, além de possuir uma vida boêmia ativa no dia a dia [20].

Em paralelo, foi realizada uma pequena triagem, com a seleção de seis prédios de usos e características diferentes e elaborou-se um estudo bibliográfico do método ARICA e sua aplicação em casos semelhantes. Dessa pesquisa foi elaborada uma ficha de visita dos imóveis, onde foram posteriormente vistoriados e tiveram suas condições físicas devidamente analisadas.

As visitas foram nos dias 01.12.2022 e 02.12.2022, e foram feitos registros fotográficos e preenchimento da ficha de visita, obtendo os dados para a elaboração dos cálculos.

Além disso, foram estudadas as Leis vigentes no Estado de Pernambuco [8], a fim de identificar se existem limitações ou falhas em relação à aprovação dos projetos de prevenção e combate de incêndio no Estado.

Com base na análise das literaturas e das vistorias dos estudos de caso [2,12,14,15], foram elaborados cálculos e desenhos ilustrativos que detalham as condições de cada imóvel, culminando na criação de tabelas com os índices de risco e vulnerabilidade.

Dessa forma, ao se obter informações com índices de vulnerabilidade em relação ao risco de incêndio podem-se tomar medidas, providenciar soluções ou até adotar o método original para sanar a problemática verificada, constatando ou não uma fragilidade da legislação local [21].

 

3.1 MÉTODO ARICA SIMPLIFICADO

 

Em resumo o método ARICA simplificado faz a utilização dos fatores globais, os quais na análise são considerados de quatro tipos, sendo três de risco e um de eficácia, com os resultados de cada fator calculam-se os fatores de Risco de Incêndio (FRI) e o Fator de Risco de Referência (FRR), os quais vão indicar o Risco de Incêndio (RI), além disso, com o Fator Global é calculado o índice de Vulnerabilidade (VU) do edifício [15,21,22,23,24,25].

 Os fatores globais estão assim separados e divididos:

·       Fator Global associado ao início do incêndio (FGII). Analisa e quantifica os subfatores: o estado de conservação da construção (FCE); instalações elétricas (FIEL); instalações de gás (FIG) e natureza das cargas de incêndio (FNCI) do imóvel, e o valor obtido é uma média desses índices.

·       Fator Global associado ao desenvolvimento e propagação do incêndio do edifício (FGDPI). Analisa e quantifica os subfatores: afastamentos entre vãos alinhados (FAV); equipes de segurança (FES); detecção, alerta e alarme de incêndio (FDI); compartimento corta-fogo (FCCF); cargas de incêndio (FCI). O resultado da FGDPI é a média desses subfatores.

·       Fator Global associado à evacuação do edifício (FGEE). Analisa e quantifica: caminhos de evacuação (FICE); propriedades do edifício (FIE); fator de correção (FC). O resultado da FGEE é a média desses subfatores.

·       Fator Global de eficácia associado ao combate ao incêndio (FGCI). Analisa e quantifica os subfatores: fatores externos de combate ao incêndio (FECI) que analisa dimensão da via, vazão rede de abastecimento e distância do hidrante externo; fatores internos de combate ao incêndio (FICI); equipes de segurança (FES). O resultado da FGCI é a média desses subfatores [15].

Com isso, para cada unidade analisada, o FRI é calculado pela média aritmética dos quatro fatores e seus pesos equivalentes, como visto na Equação 1.

 

      (1)

 

Onde FRI – Fator Risco Incêndio, FGII – Fator Global do Início do Incêndio, FGDPI – Fator Global do Desenvolvimento e Propagação do Incêndio, FGEE – Fator Global de Evacuação do Edifício e FGCI – Fator Global de Combate ao Incêndio.

 

Já o cálculo do FRR é determinado pelos diferentes usos do edifício (uso recorrente ou industrial, arquivo, armazéns), existem duas Equações 2 e 3 usadas respectivamente, as quais definem o valor do fator a ser adotado.

 

                   (2)

                 (3)

 

Onde FRR – Fator de Risco Referência e FC – Fator Correção.

 

Com o resultado do FRI e do FRR usa-se a Equação 4 para se adquirir o valor do Risco de Incêndio:

 

                (4)

 

Onde FRI – Fator Risco Incêndio e FRR – Fator de Risco Referência

 

Se o risco de incêndio for superior a 1,00, significa que o edifício não possui segurança ideal e que devem ser adotadas medidas para melhorar a segurança do imóvel [15].

Com isso, se faz necessário fazer o cálculo do índice de vulnerabilidade, cuja função determina o grau de urgência de atuação e adoção das medidas para satisfazer as condições de segurança e diminuição dos riscos. O cálculo se obtém da Equação 5:

 

      (5)

 

Com esse resultado pode-se classificar o grau de vulnerabilidade, sendo:

0-20 = Condições de segurança contra incêndio satisfatória, o edifício não apresenta problemas que comprometam a segurança das pessoas ou dos seus usuários;

20-40 = Condições de segurança contra incêndio com a adoção de pequenas medidas, a fim de atender a pontuação satisfatória;

40-60 = Condições de segurança contra incêndio com a adoção de medidas preventivas, a fim de atender a pontuação satisfatória;

60-100 = Condições de segurança contra incêndio com a adoção de medidas urgentes, normalmente os edifícios possuem cargas de incêndio elevadas e uma condição precária de segurança e ou conservação;

Constatando os fatores analisados pelo método ARICA simplificado, observa-se que o mesmo é uma ferramenta de diagnóstico do nível do risco e do grau de urgência. Além disso, os resultados fornecem índices para a realização de ações mitigadoras nos Centros Antigos avaliados, pois, são considerados variáveis específicas em relação às características de usos, construção, implantação e de materiais usados nos prédios [15,21,22].

 

4     RESULTADOS E DISCUSSÃO

 

4.1     CARACTERÍSTICAS DOS PRÉDIOS ANALISADOS

 

Foram analisados seis imóveis dentro do conjunto de 29 casas do Pátio de São Pedro, a visita focou em coletar os valores dos fatores exigidos para os cálculos do método ARICA simplificado, além de ser feito um levantamento fotográfico e arquitetônico. O resultado auxiliou na elaboração dos cálculos para obtenção do grau de risco e de vulnerabilidade das edificações.

As seis casas avaliadas têm características semelhantes em relação à arquitetura, ao material usado nas suas construções, altura e disposição no terreno.

Originalmente todos os imóveis foram construídos para habitação, e com o tempo, mudaram os usos e foram reformados. As casas passaram a ser Escritório (Casa 01), Museu (Casa 02) Núcleo Cultural (Casa 04), Restaurante (Casa 03), Bares (Casa 05 e 06).

São todas edificações térreas, com exceção da Casa 02, a qual possuía no princípio dois andares e atualmente tem três lajes de concreto. Todas ocupam toda a divisa do terreno, e são construídas em alvenaria de rocha com tijolo cerâmico maciço.

Ambas também apresentam uma coberta em duas águas composta de telha cerâmica tipo colonial apoiada em estrutura de madeira. As portas e janelas também são do mesmo material.

As casas 01, 03, 04 e 06 possuem um mezanino de madeira apoiado em estrutura de mesmo material.  

Em relação ao entorno não foi encontrado nenhum equipamento de segurança contra incêndio, tipo hidrante de fachada. Também não foi constatado nenhum tipo de treinamento de evacuação ou de equipes de brigadistas no local.

 

4.1.1   Casa 01: Administrativo

 

Na primeira vistoria verificou-se que o estado de conservação da casa aparentava ser regular, com sinais de algumas degradações, como início de marcas de infiltrações nas paredes internas. A fachada está em condições regulares, assim como mostra a Figura 2.

 

 

 

Figura 2: Foto da Casa 01.

6539cab0-02e2-41a5-aab4-1c48196b47cb.jfif

Fonte: Os Autores.

 

As instalações elétricas foram modificadas com quadro de disjuntores novos e fiação embutida, mas a mudança foi de forma parcial, pois foi constatada falta de Disjuntor diferencial residual (DR) e aterramento nas tomadas. Não existe instalação de gás.

 Em relação à prevenção e equipamentos de segurança, foi constatado extintores, porém não existe sinalização de emergência. As rotas de evacuação apresentam as dimensões dentro da norma [8].

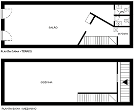
A divisão interna pode ser vista no Croqui da Figura 3.

 

casa4A_page-0001.jpg
Figura 3: Croqui da Casa 01.

Fonte: Os Autores.

 

4.1.2   Casa 02: Museu

 

O segundo imóvel a ser vistoriado foi a Casa 02, a qual parece na Figura 4, o estado de conservação do imóvel é bom, sem indícios ou vícios construtivos aparentes.

 

 

Figura 4: Foto da Casa 02.

Fonte: Os Autores.
73707e3c-a61c-4da9-8858-d1a7d7100481.jfif

 

O Museu tem como função principal expor e promover cursos, bem como fornecer aos alunos oficinas, palestras e aulas ligadas ao assunto, além de um espaço de exposição.

A construção original tem dois pavimentos, porém após uma reforma o prédio passou a ter três pisos. O primeiro piso, no térreo, onde se faz as exposições com banheiros e copa; o segundo onde são realizados as oficinas e cursos e que possui um grande vão com banheiros. No terceiro e último que funciona o setor administrativo com banheiros. A divisão interna pode ser vista no Croqui da Figura 05.

 

Figura 5: Croqui da Casa 02.

casa10_page-0001.jpg
 Fonte: Os Autores.

 

As instalações elétricas foram modificadas com quadro de disjuntores novos, as fiações estão embutidas e as tomadas são do padrão exigido por norma. Não existe instalação de gás.

   Em relação à prevenção e equipamentos de segurança, foi constatado extintores de incêndios, mas não tem sinalização de emergência. A rota de fuga tem as dimensões dentro do exigido por norma [8].

 

4.1.3   Casa 03: Restaurante

 

A terceira Casa a ser visitada funciona um Restaurante, e possui um estado de conservação regular, como pode ser visto em sua fachada na Figura 06.

 

ef8a0d00-6cb6-48f1-b4ff-5858d5dba67b.jfif
Figura 6: Foto da Casa 03.

Fonte: Os Autores.

 

As instalações elétricas foram parcialmente modificadas com a colocação de novos disjuntores e a fiação foi embutida. A instalação de gás é com botijão GLP de 13 kg e o lugar não tem ventilação direta.

A divisão interna pode ser vista no Croqui da Figura 7.

 

casa28_page-0001.jpg
Figura 7: Croqui da Casa 03.

Fonte: Os Autores.

 

 No local existem extintores e sinalização de emergência. A rota de fuga tem dimensão menor do exigido e uma única saída do mezanino, onde funciona a cozinha.

 

4.1.4   Casa 04: Núcleo Cultural

 

A Casa 04 funciona o Núcleo de Cultura, o qual é um espaço para reuniões, estudos, pesquisas (biblioteca) e apresentações. O imóvel aparenta um estado de conservação regular, como mostra a fachada do prédio na Figura 8.

 

Figura 8: Foto da Casa 04.

c8073688-64ad-49b6-98ba-e0b6c8840819.jfif

Fonte: Os Autores.

 

   A divisão interna pode ser vista no Croqui da Figura 9, onde consta que a rota de evacuação tem dimensões menores que 90 cm. Embora não tenha placas de sinalização de emergência, há extintores de incêndio.

 

casa38_page-0001.jpg
Figura 9: Croqui da Casa 04.

Fonte: Os Autores.

 

As instalações elétricas foram modificadas com quadro de disjuntores novos, as fiações estão embutidas e as tomadas são do padrão novo. Não existe instalação de gás.

 

4.1.5   Casa 05: Bar 01

 

A quinta vistoria foi na Casa 05, onde funciona atualmente um Bar, reforçando uma das características culturais do bairro como pode ser observado na Figura 10. O estado de conservação é regular. 

 

702add78-2c05-4bda-9274-71775f82fb20.jfif
Figura 10: Foto da Casa 05.

Fonte: Os Autores.

 

As instalações elétricas são originais, e falta à instalação de disjuntores mais modernos, a fiação na parte das luminárias é aparente. O local onde o gás está armazenado não possui ventilação direta e o seu tipo é o botijão GLP de 13 kg.

Embora, o local tenha a dimensão das rotas de evacuação dentro das normas vigentes [8], há falta de extintores de incêndio e sinalização de emergência. Pode-se observar no Croqui da Figura 11.

 

casa44l_page-0001.jpg
Figura 11: Croqui da Casa 05.

Fonte: Os Autores.

 

4.1.6   Casa 06: Bar 02

 

O último imóvel a ser vistoriado foi a Casa 06, onde funciona um Bar como pode ser observado na Figura 12:

 

Figura 12: Foto da Casa 06        

Uma imagem contendo vivendo, edifício, cadeira, quarto

Descrição gerada automaticamente             

Fonte: Os Autores.

 

   Embora com estado regular de conservação, a casa apresenta fissuras em uma das paredes externas.

   As instalações elétricas são originais e carecem da instalação de disjuntores mais modernos. A fiação na área das luminárias está exposta.

  O local destinado ao armazenamento de gás não conta com ventilação direta, e o tipo de gás utilizado é o botijão de GLP de 13 kg.

  Não foram encontrados extintores de incêndio, nem sinalização de emergência. A rota de fuga tem uma escada com largura menor do que 90 cm, podendo ser visto na Figura 13.

 

Figura 13: Croqui Casa 06.

casa48_page-0001.jpg

Fonte: Os Autores.

4.2     FATORES E ÍNDICES ARICA

 

Após as visitas foi elaborado uma tabela informativa, denominada Quadro 1, contendo a compilação de todos os dados dos imóveis conforme o método simplificado do ARICA.

 

Quadro 1: Fatores ARICA Simplificado compilado.

Fatores da Metodologia ARICA Simplificada

FATOR

Casa 01

Casa 02

Casa 03

Casa 04

Casa 05

Casa 06

FCE

1,10

1,00

1,10

1,10

1,10

1,10

FIEL

1,25

1,00

1,25

1,25

1,50

1,50

FIG

1,00

1,00

1,80

1,00

1,80

1,80

FNCI

1,60

1,30

1,95

2,40

1,95

1,95

FGII

1,24

1,07

1,52

1,43

1,50

1,58

FAV

1,00

1,50

1,00

1,25

1,00

1,50

FES

1,00

1,00

1,00

1,00

1,00

1,00

FDI

1,00

1,00

1,00

1,00

1,00

1,00

FCCF

1,60

1,30

1,60

1,60

1,30

1,70

FCI

0,70

0,70

0,50

2,00

0,50

0,70

FGDPI

1,06

1,10

1,02

1,37

0,96

1,18

FICE

1,25

1,25

1,50

1,50

1,25

1,50

FIE

1,00

1,00

1,00

1,00

1,00

1,00

FC

1,10

1,10

1,10

1,10

1,10

1,10

FGEE

1,11

1,11

1,20

1,20

1,11

1,20

FECI

1,33

1,33

1,33

1,33

1,33

1,33

FICI

1,00

1,00

1,00

1,00

2,00

2,00

FES

1,00

1,00

1,00

1,00

1,00

1,00

FGCI

1,11

1,11

1,11

1,11

1,44

1,44

Fonte: Os Autores.

 

Onde FCE – Fator Conservação Edificação, FIEL – Fator Instalações Elétricas, FIG – Fator Instalações de Gás, FNCI – Fator Natureza das Cargas de Incêndio, FGII – Fator Global Início de Incêndio, FAV - Fator Afastamento de Vãos, FES – Fator Equipes de Segurança, FDI – Fator de Detecção e Alerta de Incêndio, FCCF – Fator de Compartimento Corta-Fogo, FGDPI – Fator Global do Desenvolvimento e Propagação do Incêndio, FICE – Fator Caminhos e Evacuação, FIE – Fator de Propriedades do Edifício, FC - Fator Correção, FGEE – Fator Global Evacuação do Edifício, FECI – Fatores Externos Combate Incêndio, FICI – Fatores Internos de Combate ao Incêndio, FES – Equipes de Segurança, FGCI – Fator Global Combate ao Incêndio.

 

Analisando o Quadro 1 e fazendo uma comparação entre os subfatores obtidos na pesquisa, pode-se identificar os problemas e buscar as soluções, a fim de melhorar os índices avaliados e consequentemente aumentar os parâmetros de prevenção e combate contra incêndio.

Dentro os subfatores que resultam no Fator Global de Início de Incêndio (FGII) têm o que analisa a Conservação Edificação (FCE), todas as casas ficaram com o estado regular de conservação, a exceção foi a Casa 02, a qual possui um estado de conservação bom.

Em relação a Instalação Elétrica (FIEL) as casas 01, 03 e 04 fizeram ajustes parciais na instalação em geral, as casas 05 e 06, mantiveram o quadro original, apenas a casa 02 teve a instalação elétrica toda reformulada.

No item da Instalação do Gás (FIG) as casas do restaurante e as dos bares, apresentaram resultados iguais, pois em todas há a utilização do botijão GLP de 13 Kg, e a armazenagem em lugares confinados sem ventilação direta. As demais casas não utilizam nenhum tipo de gás.

    O subfator da Natureza da Carga de Gás (FNCI) é obtido no resultado da multiplicação dos coeficientes do material armazenado e o coeficiente de combustível.

 O índice com maior valor de Carga de Incêndio foi o da Casa 04 do Núcleo Cultural, por ter uma biblioteca, possui segundo a tabela vista no Decreto 220/2008 [21], o coeficiente de ativação do material armazenado alto. A classificação do coeficiente de combustibilidade para o uso de um local que tem reunião é médio.

    O material da Casa 01 é de índice alto por ser de escritório, porém com baixa probabilidade de combustão devido ao uso.

    As casas 03 e 06 por terem os mezaninos de madeira e móveis do mesmo material ficaram com o valor médio da quantidade do material e com índice médio de combustão devido ao tipo de atividade.

    Apesar da casa 05 ter o mesmo índice médio de combustão devido ao uso, não tem o mezanino de madeira e o material considerado como o de maior quantidade foi o de cervejaria, o qual de acordo com o Decreto é baixo.

    O menor valor do índice da Carga de Incêndio foi o da Casa 02, pois o coeficiente da quantidade de material foi o de materiais de madeira, que é médio, devido ao forro de lambri e portas e janelas do mesmo material. O coeficiente de ativação do uso de Museu e Galerias de Arte é baixo.

    Os subfatores do Fator Global do Desenvolvimento e Propagação do Incêndio (FGDPI) têm no item da Abertura dos Vãos (FAV) sobrepostos a avaliação do perigo de propagação do fogo pelo exterior de prédios alinhados.

    As casas 01, 03 e 05 não têm vãos com afastamentos inferiores de 1,10 metros. A Casa 04 possui um vão com distância inferior da referência regulamentar, e as Casas 02 e 06 mais de dois vãos.

    Em relação ao subfator de Equipes de Segurança (FES), as casas analisadas não possuem pessoas habilitadas e treinadas para fazer extinção do desenvolvimento e propagação do incêndio nos edifícios, embora não seja obrigatório esse tipo de equipe ou pessoa habilitada [8].

    De acordo com o COSIP [8], não é necessário detector de fumaça e alarme, nas casas vistoriadas, pois as áreas construídas das mesmas são inferiores da metragem mínima exigida. Com isso, o valor considerado para o item de Detecção de Incêndio (FDI) ficou igual para todos os prédios.

    Esse subfator de Compartimento Corta Fogo (FCCF) contempla a verificação dos elementos construtivos tradicionais dessas construções antigas, considerando a utilização da madeira nos pisos, paredes e esquadrias, além de verificar o estado de degradação das alvenarias externas de pedra argamassadas.

    As Casas 01, 03, 04 e 06 têm as esquadrias e pisos de pavimentos de madeira. A Casa 06 ainda apresenta problemas na alvenaria externa de pedra.

    No caso, as Casas 02 e 05 foram consideradas apenas as portas e janelas de madeira.

    Na análise da densidade das Cargas de Incêndio (FCI) verifica os demais materiais nos imóveis que apresentem possibilidades de desencadear o processo de combustão.  Os valores são obtidos no Decreto nº 2074/2009 [21].

    Para se obtiver o valor do Fator Global Evacuação do Edifício (FGEE), se faz necessário à valoração dos subfatores, um deles é o Fator Caminhos e Evacuação (FICE).

    Os resultados são definidos por condições dos caminhos, que caso sejam identificados problemas, esses são somados a um parâmetro mínimo. As casas 01, 02, 04, 05 e 06 por falta de sinalização e iluminação de emergência somaram um valor ao subfator.         

    Os prédios 03, 04 e 06 apresentaram um vão menor que 90 cm de largura, na rota de fuga. O prédio 03 apresentou um número inferior de rotas de fugas para as evacuações de emergências.

    O resultado desse índice de Fator de Propriedade do Edifício (FIE) foi igual para todos os imóveis, pois apesar de não ser exigido por norma [8], não foi realizado exercícios de evacuação em nenhuma situação.  

    O Fator de Correção (FC) tem o objetivo de majorar em função do número de pisos do edifício. Como todos os prédios não passam de três pavimentos o valor do item ficou igual para todos.

    O último Fator Global que se refere ao Combate ao Incêndio (FGCI) é resultado dos subfatores que avaliam as condições externas do Centro Histórico, o qual analisa as condições dos acessos de veículos, de equipamentos de proteções coletivos como os hidrantes externos, equipes de brigadas. Ainda é verificada a regularidade do sistema de abastecimento de água.

   O Fator Externo Combate Incêndio (FECI), revelou o mesmo resultado entre as casas avaliadas, pois as condições das Ruas de acessos, com larguras e inclinações, abastecimento de água e Equipamentos Coletivos de Combate a Incêndios são similares.

   O subfator de Fatores Internos de Combate ao Incêndio (FICI) apresentou valores similares entre os avaliados, contudo os Prédios 05 e 06 por não terem extintores de incêndios ficaram com o índice superior no item.

    O subfator de Equipes de Segurança (FES) se repete e mantém o mesmo resultado.

 Com o cálculo dos índices vistos no Quadro 1, foram obtidos os resultados do grau de risco e de vulnerabilidade das edificações como consta no Quadro 2.

 

Quadro 2: Índices do ARICA Simplificado compilados.

Índices da Metodologia ARICA Simplificada

FATOR

Casa 01

Casa 02

Casa 03

Casa 04

Casa 05

Casa 06

FRI

1,21

1,17

1,31

1,38

1,35

1,45

FRR

1,19

1,19

1,19

1,37

1,19

1,19

RI

1,02

0,98

1,10

1,01

1,13

1,21

VU

47,95

 

51,35

54,21

53,05

57,29

 

 

 

 

 

 

 

 

 

 

 

 

Fonte: Os Autores. Onde FRI – Fator Risco Incêndio, FRR – Fator Risco de Referência, RI – Risco Incêndio e VU - Vulnerabilidade.

 

Constata-se que as casas 01, 03, 04, 05 e 06, apresentaram o valor do índice risco de incêndio um resultado superior a 1,00 e vulnerabilidade entre 40 – 60% que indica:

Condições de segurança contra incêndio com a adoção de medidas preventivas, a fim de atender a pontuação satisfatória.

Os resultados permitem identificar os pontos mais críticos de cada edificação, através da análise dos subfatores e seus valores.

 

4.2     DISCUSSÃO

   

A pesquisa realizada sugere a implementação de medidas, ações e a adoção de boas práticas para melhorar os índices de risco de incêndio e vulnerabilidade. Alguns aspectos de segurança essenciais precisam ser atendidos com urgência, a fim de garantir o cumprimento da legislação vigente. Entre os pontos mais críticos, destacam-se a ausência de extintores de incêndio nas casas 05 e 06, além da falta de sinalização de emergência nas casas 01, 02, 04, 05 e 06.

Em relação aos subfatores analisados de forma geral segue as recomendações das medidas mitigadoras a serem adotadas:

A conservação das edificações tem um impacto direto na segurança contra incêndios, uma vez que a deterioração estrutural pode aumentar o risco de desabamento em caso de sinistro. Para melhorar a situação, é fundamental manter as construções em boas condições de conservação.

As instalações elétricas, sendo um dos principais fatores na ignição de incêndios, devem ser tratadas como um item fundamental a ser atendido nas medidas de segurança.

As instalações de gás nos restaurantes e bares apresentam práticas inseguras, como o armazenamento de botijões de GLP em locais confinados e sem ventilação, aumentando o risco de explosões e propagação de incêndios. As casas que utilizam gás precisam adotar urgentemente medidas de segurança, como a ventilação adequada.

Os valores de Carga de Incêndio e a Densidade de Carga resultam em função da quantidade e tipo de material combustível. Esses não têm como serem alterados, porém como ação preventiva deve-se praticar cuidados específicos, como utilizar extintor de incêndio compatível com o tipo de carga.  

Há Fatores que devido às condições físicas e construtivas dos imóveis não podem ser alterados. Como exemplo, tem as aberturas dos vãos das fachadas alinhadas, que podem devido à distância próxima propagar o fogo. Como medida de segurança pode-se utilizar materiais que não danifiquem a integridade do patrimônio, mas que promovam a estanqueidade das chamas.

Outro fator são os materiais construtivos que são na sua maioria de madeira. A originalidade construtiva deve ser mantida e não podem ser substituídas. Então, devem-se manter as construções em bom estado de conservação e usar equipamentos de prevenção mais adequados a esse tipo de material.

Em prédios históricos, onde alterações estruturais significativas são difíceis de implementar, a instalação de mecanismos de segurança pode ser uma solução viável para garantir uma evacuação eficiente e segura.

Medidas como sinalização visível e iluminação de emergência ajudam a orientar as pessoas durante uma evacuação, enquanto sistemas de alarme sonoro e visual são importantes para alertar sobre a emergência e informar sobre as rotas de fuga.

Além disso, é viável treinar os usuários do local, para saber como agir em caso de emergência. Sistemas de controle de fumaça também podem ser instalados para evitar que a fumaça obstrua as rotas de fuga. Essas medidas garantem que a evacuação seja segura e eficiente, mesmo em edificações antigas e com limitações estruturais.

O último fator a ser analisado é de eficácia, o qual se concentra na avaliação dos itens relacionados ao combate ao incêndio. Os extintores individuais devem ser adequados para cada imóvel, sendo fundamental utilizá-los corretamente para evitar a propagação do fogo e garantir sua extinção.

Por isso, treinamento e a formação de brigadas de incêndio são essenciais para a proteção dos Edifícios Antigos e dos seus usuários. Além disso, equipamentos adequados como hidrantes externos auxiliam nesse trabalho de combate ao incêndio. 

 

5   CONCLUSÕES

 

Verifica-se que grande parte das amostras dessa pesquisa apresentou o valor do índice risco de incêndio um resultado superior a 1,00 e vulnerabilidade ao risco de incêndio entre 40-60%. Dessa forma, medidas deveram ser adotadas, a fim de que o índice de risco de incêndio atinja a pontuação satisfatória.

De forma individual cada unidade deve atentar para a adequação da instalação elétrica, do sistema de gás, nas rotas de evacuação e equipamentos de prevenção e combate ao incêndio.

Outras medidas mitigadoras a serem adotadas, sendo que de efeito coletivo, são a inclusão de hidrantes externos, a formação de equipes de segurança e treinamentos de evacuação no Conjunto Histórico.

Essas medidas em geral acarretariam em melhora significativa, assegurando que os imóveis atinjam condições de segurança para os usuários e para o patrimônio construído.

As normas vigentes relativas à proteção e combate em incêndio de Pernambuco, não contempla de forma específica os Conjuntos Antigos protegidos pela DPPC. Com isso, o artigo abordou a importância de como podemos preservar o Patrimônio Edificado com estudos de casos comparando e analisando métodos e Leis que possam auxiliar as Normas existentes. 

A utilização do método ARICA simplificado foi fundamental para identificar e analisar as problemáticas de algumas casas do Conjunto Histórico do Pátio de São Pedro, permitindo uma visão detalhada das condições de segurança contra incêndios.

Esse processo facilitou a promoção de discussões sobre a melhoria das normas de prevenção e combate a incêndio, buscando implementar medidas mais eficazes. A prevenção pode ser aprimorada ao proteger tanto o conjunto histórico quanto seus usuários, garantindo a segurança sem comprometer a integridade do patrimônio.

Enfim, não basta apenas cumprir a legislação, pois ela é genérica, não cobrindo as particularidades existentes em cada edifício, nem no Conjunto Antigo como um todo. É crucial superá-la, indo além daquilo que é exigido. Prevenir e proteger contra incêndios são ações que competem a todos os usuários, profissionais e agentes públicos.

 

REFERÊNCIAS

 

[1] ONO, R. Proteção do patrimônio histórico-cultural contra incêndio em edificações de interesse de preservação. Palestra apresentada na Fundação Casa de Rui Barbosa. Rio de Janeiro, 2004. Disponível em: http://antigo.casaruibarbosa.gov.br/dados/DOC/palestras/memo_info/mi_2004/FCRB_MemoriaInformacao_RosariaOno.pdf. Acesso em: 20 nov. 2024.

 

[2] FIGUEIRA, Rui; RODRIGUES, João Paulo C.; COELHO, António Leça. Avaliação do risco de incêndio em centros urbanos antigos: Parte I–aplicação do método de ARICA ao centro histórico do Funchal. Territorium, n. 18, p. 99-107, 2011. Disponível em: https://dialnet.unirioja.es/servlet/articulo?codigo=5773140. Acesso em: 20 nov.

 

[3] SERPA, Fabíola Bristot et al. A segurança contra incêndio como abordagem de conservação do patrimônio histórico edificado: a aplicação do sistema de projeto baseado em desempenho em edifícios históricos em Florianópolis, SC. 2009. 204 p. Dissertação (Mestrado em Arquitetura e Urbanismo) - Departamento de Tecnologia, Universidade Federal de santa Catarina. Santa Catarina, 2009. Disponível em: https://repositorio.ufsc.br/handle/123456789/93140. Acesso em: 20 nov. 2024.

 

[4] MARINHO, A. M. Segurança contra incêndio em edificações tombadas pelo patrimônio histórico. 2018. 31 p. Trabalho de Conclusão de Curso (Pós-graduação em Projeto, Execução e Manutenção de Edificações) Centro Universitário de Brasília. Brasília, 2018. Disponível em: https://repositorio.uniceub.br/jspui/handle/235/12330. Acesso em: 20 nov. 2024.

 

[5] HOWE, J. M.; LINSKY, R. B. Fundamentals of combustion. New York: McGraw-Hill, 2000.

 

[6] INSTITUTO BRASILEIRO DE MUSEUS. Reforma integral do Museu da Abolição. Publicado em: 25 nov. 2020. Disponível em: https://museudaabolicao.museus.gov.br/reforma-do-museu-da-abolicao/. Acesso em: 21 nov. 2024.

 

[7] BRASIL. Lei nº 16.176/96, a Lei nº 16.290/97 e a Lei nº 16.719/01. Zonas Especiais de Preservação do Patrimônio Histórico-Cultural – ZEPH. Disponível em: http://www2.recife.pe.gov.br/sites/default/files/lista_de_zephs.pdf. Acesso em: 31 mar. 2020.

 

[8] PERNAMBUCO. Decreto nº 19.644, de 13 de março de 1997. Código de segurança contra incêndio e pânico para o Estado de Pernambuco. Diário Oficial do Estado de Pernambuco, Recife, 13 mar. 1997. Disponível em: https://www.bombeiros

     .pe.gov.br/index.php/documentos-para-baixar/legislacoes-tecnicas. Acesso em: 28 abr. 2025.

 

[9] BRASIL. IPHAN – INSTITUTO DO PATRIMÔNIO HISTÓRICO E ARTÍSTICO NACIONAL. Portal do IPHAN. Disponível em: http://portal.iphan.gov.br/. Acesso em: 21 nov. 2024.

 

[10] UNESCO. Recomendação de Nairóbi. 19ª Sessão da Conferência Geral da Organização das Nações Unidas para a Educação, a Ciência e a Cultura. Nairóbi, 1976. Disponível em: http://portal.iphan.gov.br/uploads/ckfinder/arquivos/Recomendacao%20de%20Nairobi%201976.pdf. Acesso em: 20 nov. 2024.

 

[11] RECIFE. Diretoria de Preservação do Patrimônio Cultural (DPPC). Disponível em: https://dppc.recife.pe.gov.br/dppc. Acesso em: 21 nov. 2024.

 

[12] MUCULO, Conceição Pande. Avaliação de       risco de incêndio pelo método ARICA a edifícios no Porto. 2013. 136 p. Dissertação (Mestrado em Engenharia de Segurança e Higiene Ocupacionais) - Faculdade de Engenharia da Universidade do Porto. Portugal, 2013. Disponível em: https://core.ac.uk/download/pdf/143398728.pdf. Acesso em: 20 nov. 2024.

 

[13] LOPES, J.; LEÇA COELHO, A.; RODRIGUES, João Paulo. O risco de incêndio urbano nos planos municipais de emergência. 2011. ALBRASCI (Associação Luso-Brasileira para Segurança contra incêndio) e Universidade Federal do Rio Grande do Norte. Rio Grande do Norte, 2011. Disponível em: https://repositorio.lnec.pt/handle/123456789/1003948. Acesso em: 20 nov. 2024.

 

[14] FIGUEIRA, R.; LEÇA COELHO, A.; RODRIGUES, J. Método de ARICA para centros urbanos antigos. 2011. 2as Jornadas de Segurança aos Incêndios Urbanos Universidade de Coimbra. Portugal, 2011. Disponível em: https://repositorio.lnec.pt/handle/123456789/1004231. Acesso em: 20 nov. 2024.

 

[15] VICENTE, Romeu et al. Risco Sísmico e de Incêndio nos Núcleos Urbanos Antigos do Seixal. Caderno 4: Avaliação do Risco de Incêndio. Instituto Pedro Nunes, 2010. Disponível em: https://www.researchgate.net/publication/236133128_Cadernos_de_apoio_a_avaliacao_do_Risco_sismico_e_de_incendio_nos_Nucleos_Urbanos_Antigos_do_Seixal_-_Caderno_4_Avaliacao_do_Risco_de_Incendio_Urbano/citations. Acesso em: 20 nov. 2024.

 

[16] ASSOCIAÇÃO BRASILEIRA DE NORMAS TÉCNICAS. NBR 14432: Exigências de resistência ao fogo de elementos construtivos de edificações - Procedimento. Rio de Janeiro. 2001.

 

[17] BRASIL. Lei Nº 13.425, de 30 de março de 2017. Diretrizes gerais sobre medidas de prevenção e combate a incêndio e a desastres em estabelecimentos, edificações e áreas de reunião de público. Disponível em: http://www.planalto.gov.br/ccivil_03/_Ato2015-2018/2017/Lei/L13425.htm. Acesso em: 30 de mar. 2020.

 

[18] SILVA, A. C. P. Gerenciamento de riscos de incêndio em espaços urbanos históricos: uma avaliação com enfoque na percepção do usuário. 2003. 217 p. Dissertação (Mestrado em Engenharia de Produção). Universidade Federal de Pernambuco. Recife, 2003. Disponível em: https://repositorio.ufpe.br/handle/123456789/5828. Acesso em: 20 nov. 2024.

 

[19] SILVA, João Pereira da. Risco de incêndio em patrimônio cultural: a importância das ações de manutenção preventiva. 2018. 173 p. Dissertação (Mestrado em Estudos Culturais Contemporâneas) Universidade FUMEC. Belo Horizonte, 2018. Disponível em: https://repositorio.fumec.br/handle/123456789/138. Acesso em: 20 nov. 2024.

 

[20] WIKIPÉDIA: a enciclopédia livre. Concatedral de São Pedro dos Clérigos. Disponível em: https://pt.wikipedia.org/wiki/Concatedral_de_S%C3%A3o_Pedro_dos_Cl%C3%A9rigos. Acesso em: 21 nov. 2024.

 

[21] NETO, Julio Tozo; FERREIRA, T.; REMOR, Marcelo Bevilacqua. Análise de Vulnerabilidade ao Incêndio em Núcleos Urbanos Antigos - Os Centros Históricos Brasileiros e a Metodologia ARICA Simplificada. In: Redução do risco de desastres e a resiliência no meio rural e urbano 2. ed. Bauru: Associação dos Geógrafos Brasileiros – Seção Bauru, 2020. p. 505–515. Disponível em: https://www.agbbauru.org.br/publicacoes/Reducao2020/Reducao_2ed-2020-28.pdf. Acesso em: 20 nov. 2024.

 

[22] BELGAS, Lurdes et al. Avaliação do risco de incêndio no Núcleo Urbano de Aljustrel. 2016. 5JORNINC - 5as Jornadas de Segurança aos Incêndios Urbanos. Portugal, 2016. Disponível em: https://www.researchgate.net/publication/304804232_Avaliacao_do_risco_de_incendio_no_Nucleo_Urbano_de_Aljustrel. Acesso em: 20 nov. 2024.

 

[23] NEGRISOLO, Walter. Arquitetando a segurança contra incêndio. 2011. 447 p. Tese (Doutorado em Arquitetura). Universidade de São Paulo. São Paulo, 2011. Disponível em: https://d1wqtxts1xzle7.cloudfront.net/90102320/Arquitetando_a_Seguranca_Contra_Incendio_Rv-libre.pdf?1661201053=&response-content-disposition=inline%3B+filename%3DArquitetando_a_seguranca_contra_incendio.pdf&Expires=1745867300&Signature=Wkcv82m0UwtCPQawxztHBKCnIYJJv8cakMkcZxD-hnn7xFVWKydOYAgGUSxVGJld~sZV3ANWQ6L57aJDWxe-DqeALODuES~aKq8RvsveLz3FCC2V~LdL0lN3omBNrpMkfljtSgJOO4QQsGBaH5qg5ZoIdAF84m5OhaRfuma0vFC5vvV6wVyT1hZx2Z3T0yc~-Xq4BYaenei8-F-9BEVYR0g6ItDOX6NNT~B5uUHjRlirrvl3H8IxFImyDosuGtc~JJv~Du-2QQHbgY2Q2Lf7Tgtw~RORg2A4YxEwGvjD5J8Ldlpui4CiomNmYzGJ6Y5l~FeQYkWxGoIpB4PAp8SL-A__&Key-Pair-Id=APKAJLOHF5GGSLRBV4ZA. Acesso em: 20 nov. 2024.

 

[24] FERREIRA, Tiago Miguel et al. Urban fire risk: Evaluation and emergency planning. Journal of Cultural Heritage, v. 20, p. 739-745, 2016. Disponível em: https://www.sciencedirect.com/science/article/pii/S1296207416300577. Acesso em: 20 nov. 2024.

 

[25] GRANDA, Santiago; FERREIRA, Tiago Miguel. Assessing vulnerability and fire risk in old urban areas: application to the historical centre of Guimarães. Fire technology, v. 55, p. 105-127, 2019. Disponível em: https://link.springer.com/article/10.1007/s10694-018-0778-z. Acesso em: 20 nov. 2024.